Presentamos Tekoha, un innovador espacio de trabajo diseñado a partir de contenedores marítimos reciclados.
Con 30 m² de superficie, este módulo ofrece un ambiente ideal para reuniones, coworking y actividades colaborativas, combinando funcionalidad, confort y sostenibilidad.
Tekoha – (Lugar de encuentro, comunidad) – Espacio diseñado para reuniones y trabajo conjunto.

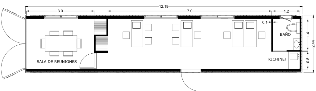
Su diseño optimizado incluye una sala de reuniones, recepción, baño y kitchenette, brindando un entorno eficiente para empresas, startups y profesionales que buscan un lugar moderno y ecológico para desarrollar sus actividades.
Ficha Técnica – Oficina Modular Tekoha
- Superficie total: 30 m²
- Dimensiones: 12.19 m x 2.44 m
Distribución:
- Recepción: Espacio de bienvenida para visitantes y clientes
- Sala de reuniones: Área amplia para encuentros de trabajo
- Baño: Equipado para mayor comodidad
- Kitchenette: Espacio funcional para alimentos y bebidas
- Construcción: Contenedor marítimo reciclado, resistente y adaptable
- Sostenibilidad: Materiales reciclados, instalación rápida y eficiente
- Uso recomendado: Oficinas de startups, espacios de coworking, salas de reuniones empresariales
Si buscas un espacio de trabajo práctico, moderno y ecológico, Tekoha es la opción ideal. Contáctanos para más información y crea tu lugar de encuentro perfecto.

0 Comentarios