Arandu es una oficina moderna y funcional, diseñada para potenciar la productividad y el trabajo colaborativo. Construida a partir de contenedores marítimos reciclados, esta solución arquitectónica combina sostenibilidad, diseño innovador y eficiencia en el uso del espacio.
Arandu – (Sabiduría) – Un lugar para la toma de decisiones y el conocimiento.

Cada área ha sido planificada para ofrecer un ambiente cómodo y profesional, ideal para reuniones estratégicas, sesiones de trabajo y atención personalizada.
Ficha Técnica – Oficina modular Arandu
- Superficie total: 30 m²
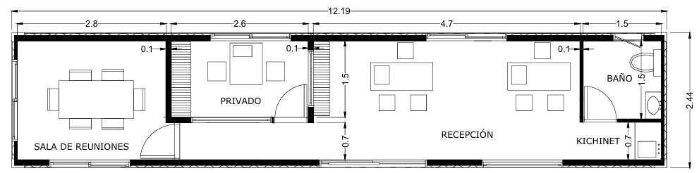
- Dimensiones: 12.19 m x 2.44 m
Distribución:
- Sala de reuniones (2.8 x 2.4 m): Espacio equipado para la planificación y toma de decisiones.
- Sala privada (2.6 x 1.5 m): Área exclusiva para trabajo concentrado y videoconferencias.
- Recepción (4.7 x 2.4 m): Un ambiente amplio para la atención de clientes y colaboradores.
- Baño completo: Adaptado para mayor comodidad.
- Kitchenette: Espacio funcional para momentos de pausa y recarga de energía.
- Construcción: Contenedor marítimo reciclado, resistente y adaptable.
- Sostenibilidad: Diseño optimizado para reducir el impacto ambiental.
- Uso recomendado: Oficinas corporativas, estudios profesionales, espacios de coworking.
Si buscas un espacio de trabajo funcional, sustentable y con un diseño innovador, Arandu es la mejor opción. Contactanos para conocer más detalles y llevar tu oficina al siguiente nivel.

0 Comentarios